Ross Avenue, Upton
£275,000
Features
Property Features
- No onward chain
- Three bedrooms
- Modern kitchen
- Popular location
- Allocated parking space
- Low maintenance garden
Description
Full Details
Located on the popular Upton Grange development, this attractive double-fronted three-bedroom semi-detached home offers modern living, excellent connectivity, and a welcoming sense of community - making it the perfect choice for families or professionals alike. NO ONWARD CHAIN.
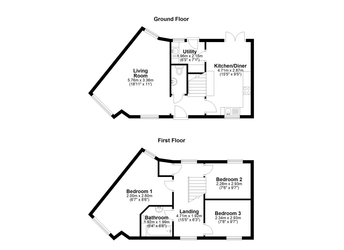
Step inside and you're greeted by a bright entrance hall with a convenient cloakroom/WC and stairs leading to the first floor. The spacious living room enjoys dual-aspect windows overlooking the green, flooding the space with natural light and creating a warm, inviting atmosphere.
To the rear, the contemporary open-plan dining kitchen is the true heart of the home - featuring modern fitted units, ample workspace, and French doors opening onto the rear garden, ideal for entertaining or relaxed family meals. A separate utility room provides additional practicality.
Upstairs, you'll find three well-proportioned bedrooms. The master benefits from fitted wardrobes, while the second and third bedrooms are both generous doubles. A stylish family bathroom completes the first-floor accommodation.
Outside, the low-maintenance rear garden features an artificial lawn and patio area - perfect for outdoor dining or children's play. The property also comes with an allocated off-road parking space conveniently located opposite.
Upton Grange is a modern and well-regarded development by Morris Homes, positioned just off Liverpool Road near the Countess of Chester Hospital. The location offers superb access to Chester city centre, the motorway network, and regular public transport links. Local amenities include a nearby Morrisons supermarket, shops at Bache, and a rail service with direct trains to Liverpool.
Location
- 01244 886 636



























